Antakya’ya Yeni Sosyal Yaşam Alanı Geliyor
Hatay’ın kalbi Antakya’da yeşil alan atağı sürüyor. AK Parti Hatay İl Başkanı Mustafa Erdoğan, Atatürk Parkı’nın 18 bin metrekarelik bir alanla genişletileceğini duyurdu. Erdoğan, "Hatay’ımız için, Antakya’mız için; daha büyük bir yeşil alan, daha fazla yürüyüş yolu, daha fazla sosyal alan, daha fazla yaşam…" ifadelerini kullandı.

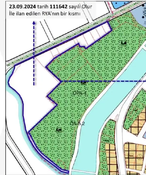
Yeni Plan, 23 Eylül 2024 Onaylı
Sosyal medyada paylaşılan harita görselinde, 23.09.2024 tarih ve 111642 sayılı onay ile ilan edilen Revizyon Uygulama İmar Planı’nın (RYA) bir parçası yer alıyor. Görselde yeşil alan olarak planlanan bölgede, “OPA-1” ve “GA-52” kodlarıyla belirtilen genişletme alanı açıkça görülüyor. Yeni plan doğrultusunda park, kuzey yönünde mevcut alanına eklenecek yeni parsellerle büyütülüyor.
📌 Mustafa Erdoğan:
“Az kaldı Hatay!”
Neler Yapılacak?
Yeni düzenlemeyle birlikte:
-
Yürüyüş yolları artırılacak
-
Sosyal donatı alanları genişletilecek
-
Bölge halkı için yaşam kalitesi yükselecek
-
Doğayla iç içe zaman geçirme imkanları çoğalacak
Bu gelişme, daha önce Atatürk Parkı’nda yapılan çevre düzenlemeleri ve yürüyüş yollarının yenilenmesine yönelik projelerin devamı niteliğinde.






